ハイツ皐月駐車場の区画一覧の月極駐車場 | Park Direct(パークダイレクト)

ハイツ皐月駐車場

入居者以外の方でも契約可能です
千葉県千葉市花見川区さつきが丘1丁目13-8

月額

7,647

(税込/管理料含む)

  • 平置き
  • 舗装
  • 24h
  • ワンボックス
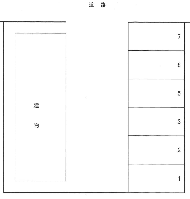
ハイツ皐月駐車場の駐車配置図
ハイツ皐月駐車場の駐車配置図
 

区画一覧

下記の一覧からご希望の区画を選択し、空き状況の確認(または空き待ち予約)にお進みください。

  • 対応車両の定義をご確認の上、ご自身の車両が駐車可能か、必要に応じて現地にてご確認をお願いいたします。
    (車種によって隣の区画との車幅注意のため、サイズに余裕のある区画を選択することをおすすめしております)
  • 審査を通過し、ご契約後の場合でも、適合しない車両であった場合にはご契約を解除させていただく場合がございます。
    なお、お客様から契約を解約する場合には、賃貸借契約所定の手続に従う必要があります。
  • 車両サイズ等の不適合を理由に契約が解除・解約される場合、支払済みの金銭について返金はされませんのでご留意ください。

合計1区画(6台)

空き状況
特徴
月額使用料
初期費用

空き待ち可

  • 種別

    平置き

  • 屋根

    なし

  • 舗装

    あり

  • 24時間

    利用可能

  • 貸与物

    なし

7,647

(税込)

管理費用等含む

14,000

(税込)

管理費用等含む

対応車両例
サイズ
台数

ワンボックス

長さ 4.8m未満、車幅 1.8m未満

ヴォクシー、セレナ、エスクァイア、ノア、ステップワゴン、ラフェスタ、ウィッシュ、プレマシーなど

  • 高さ

    不明

  • 長さ

    不明

  • 車幅

    不明

  • 車下

    不明

  • タイヤ幅

    不明

  • 重さ

    不明

6
その他費用
契約情報

保管場所使用承諾証明書発行手数料

※1

4,400円(税込)

更新費用

※2

7,559円(税込)

※1 証明書発行をご希望の方のみ必要な費用となります。

※2 契約更新時に都度発生します。

契約期間

1年更新

インボイス制度への対応

賃貸人が適格請求書発行事業者未登録の駐車場

契約条件/駐車場利用に関する備考
本駐車場はアイドリング禁止となっております。

空き待ち可

対応車両例
ワンボックス
長さ 4.8m未満、車幅 1.8m未満
月額使用料
7,647(税込)管理費等含む
初期費用
14,000(税込)管理費等含む
特徴
  • 種別

    平置き

  • 屋根

    なし

  • 舗装

    あり

  • 24時間

    利用可能

  • 貸与物

    なし

初期費用 合計

14,000円(税込)

契約時にお支払いいただく月額使用料以外の小計金額です。

内訳

①敷金

0

月極駐車場貸借の際、借主が貸主に対して駐車場使用料の滞納や損害賠償の担保として預けておく費用。

借主に未払い債務がない限り契約終了の際に返還される。

②礼金

0

駐車場貸借の際、借主が貸主に対してお礼という名目で家主に払う費用。

敷金と違い、契約終了の際に返還されない。

③事務手数料

7,000

契約締結時に、貸主または管理会社に支払う手数料。

④初回保証/管理料

7,000

保証会社との契約継続のための費用及び駐車場の管理、運営をするために必要な費用。

敷金と違い、契約終了の際に返還されない。

月額使用料 合計

7,647円(税込)

月額使用料は、駐車場利用にともなう①月額賃料、②月額保証/管理料が含まれます。利用開始月は、日割り精算でのご請求となります。

内訳

①月額賃料

7,000

駐車場の月々の使用料。

②月額保証/管理料

647

保証会社との契約継続のための費用及び駐車場の管理、運営をするために必要な費用。

地図

 

駐車場情報

取扱い店舗拠点コード
600
Park Direct管理コード
PK000120441
情報更新日
2025/11/07

駐車場の特徴

ハイツ皐月駐車場(Park Direct管理コード:PK000120441)は千葉県千葉市花見川区さつきが丘1丁目13-8にある平置きの月極駐車場です。 屋根なしで舗装された駐車スペースを提供しており、料金は7,647円です。 この駐車スペースは24時間利用可能で、対応車両例としてワンボックスサイズまで対応しています。 この駐車場をご利用いただく際は貸与物等もありませんので、契約後すぐにご利用いただけます。

近くの月極駐車場

駐車場
千葉県千葉市花見川区さつきが丘一丁目37-8

アザレアヒルズ(33440)

問い合わせ拠点から直線距離で223m
駐車場
千葉県千葉市花見川区さつきが丘二丁目41-3

ネオ(23851)

問い合わせ拠点から直線距離で532m

周辺の駅から探す

JR中央・総武線

JR総武本線

所在地について

当サイトの駐車場の所在地は、「住所」または「地番」で表記されています。

住所: 建物の場所を示すためのものです。
地番: 建物ではなく、土地の区画を管理するための番号です。

地番で地図検索をすると、地図アプリが土地全体の代表点を示すことがあるため、実際の駐車場の場所と異なる位置が表示される場合があります。

ご契約の前に現地等で駐車場の正確な場所をご確認ください

1日貸し駐車場検索・予約サービス「ワンデイパーク」のご案内

ビジネスやレジャーなど、お出かけ先での駐車場にお困りではありませんか?

1日〜数日の短期間利用できる駐車場をお探しなら、Park Directの関連サービス「ワンデイパーク」をご利用ください。

全国の1日貸し駐車場を2週間先まで予約できます(エリア拡大中)。

ワンデイパークで駐車場をさがす