月額
26,999円
(税込/管理料含む)


下記の一覧からご希望の区画を選択し、空き状況の確認(または空き待ち予約)にお進みください。
空き待ち可
種別
平置き
屋根
不明
舗装
不明
24時間
利用可能
貸与物
なし
26,999
円
(税込)
管理費用等含む
78,300
円
(税込)
管理費用等含む
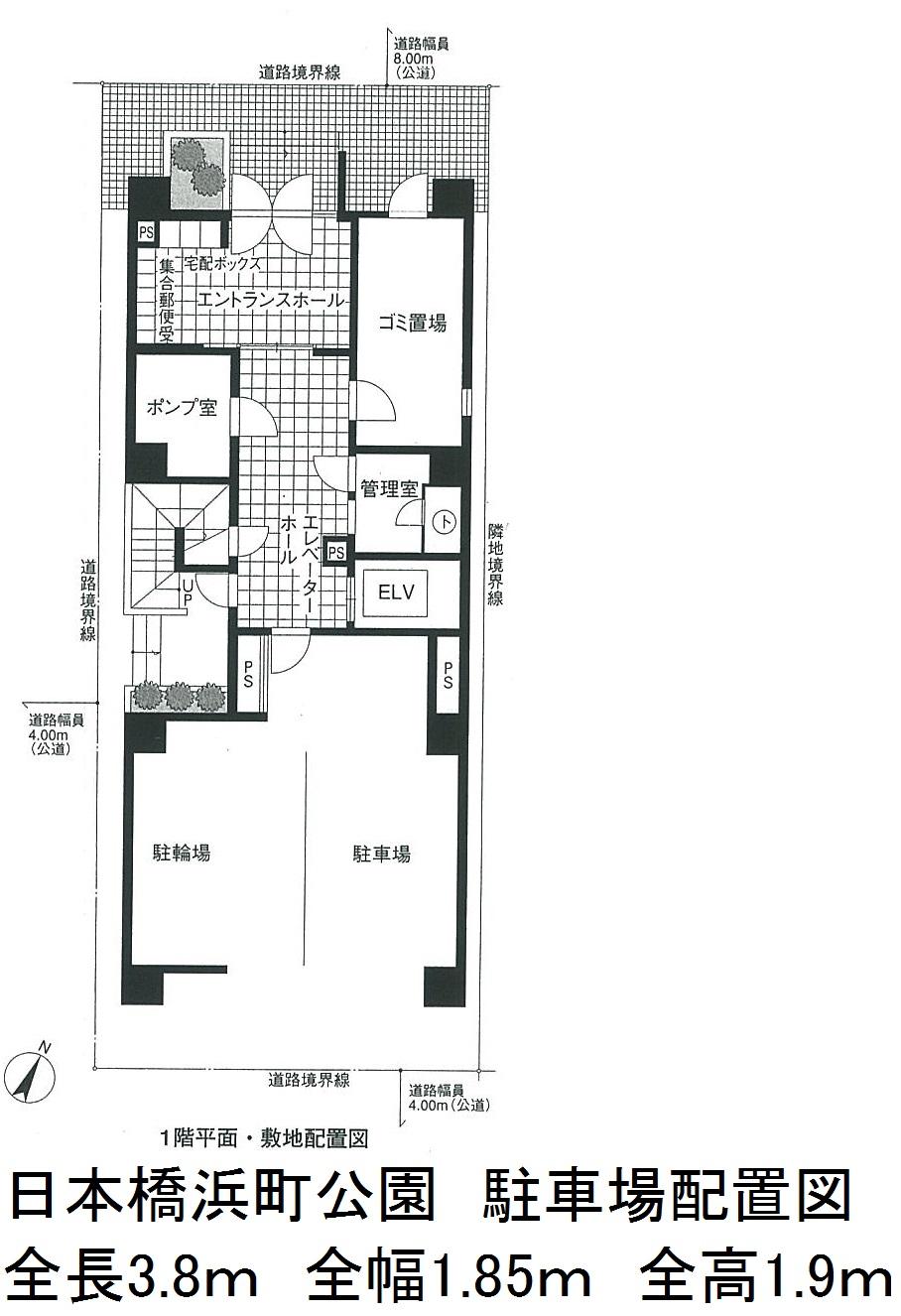
ワンボックス
長さ 4.8m未満、車幅 1.8m未満
ヴォクシー、セレナ、エスクァイア、ノア、ステップワゴン、ラフェスタ、ウィッシュ、プレマシーなど
高さ
1,900mm
長さ
3,800mm
車幅
1,850mm
車下
不明
タイヤ幅
不明
重さ
不明
保管場所使用承諾証明書発行手数料
※1
3,300円(税込)
更新費用
※2
26,999円(税込)
※1 証明書発行をご希望の方のみ必要な費用となります。
※2 契約更新時に都度発生します。
契約期間
1年更新
インボイス制度への対応
賃貸人が適格請求書発行事業者未登録の駐車場
空き待ち可
種別
平置き
屋根
不明
舗装
不明
24時間
利用可能
貸与物
なし
スカイコート日本橋浜町公園(Park Direct管理コード:PK000115250)は東京都中央区日本橋浜町二丁目53番2号にある平置きの月極駐車場です。 料金は26,999円です。 この駐車スペースは24時間利用可能で、対応車両例としてワンボックスサイズまで対応しています。 この駐車場をご利用いただく際は貸与物等もありませんので、契約後すぐにご利用いただけます。


