月額
---円
(税込/管理料含む)


下記の一覧からご希望の区画を選択し、空き状況の確認(または空き待ち予約)にお進みください。
空き待ち可
種別
平置き
屋根
不明
舗装
不明
24時間
利用可能
貸与物
なし
---
円
(税込)
管理費用等含む
---
円
(税込)
管理費用等含む
ワンボックス
長さ 4.8m未満、車幅 1.8m未満
ヴォクシー、セレナ、エスクァイア、ノア、ステップワゴン、ラフェスタ、ウィッシュ、プレマシーなど
高さ
不明
長さ
不明
車幅
不明
車下
不明
タイヤ幅
不明
重さ
不明
保管場所使用承諾証明書発行手数料※1
---円
更新費用※2
---円
※1 証明書発行をご希望の方のみ必要な費用となります。
※2 契約更新時に都度発生します。
契約期間
1年更新
インボイス制度への対応
賃貸人が適格請求書発行事業者未登録の駐車場
無し
空き待ち可
種別
平置き
屋根
不明
舗装
不明
24時間
利用可能
貸与物
なし
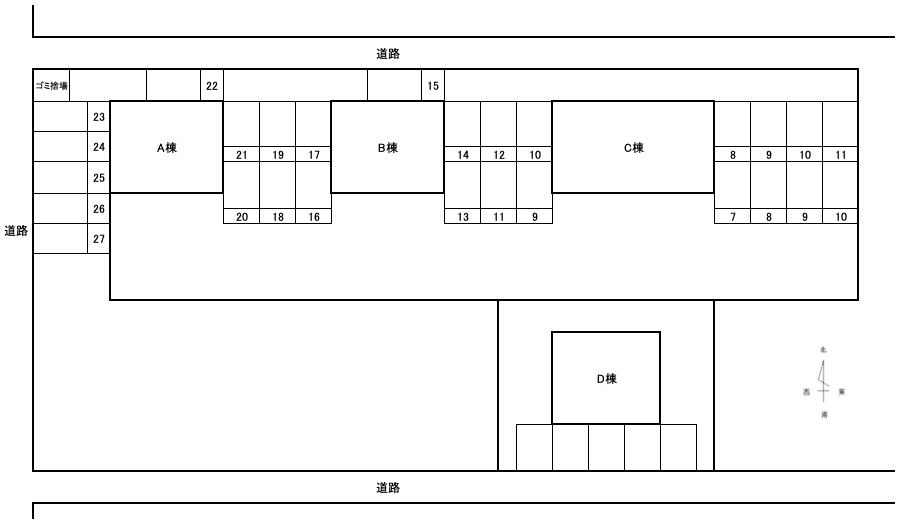
サンライズ(緑)A・B・C(Park Direct管理コード:PK000090287)は栃木県下野市緑2-18-11にある平置きの月極駐車場です。 料金はお申込み後にご確認いただけます。 この駐車スペースは24時間利用可能で、対応車両例としてワンボックスサイズまで対応しています。 この駐車場をご利用いただく際は貸与物等もありませんので、契約後すぐにご利用いただけます。



ビジネスやレジャーなど、お出かけ先での駐車場にお困りではありませんか?
1日〜数日の短期間利用できる駐車場をお探しなら、Park Directの関連サービス「ワンデイパーク」をご利用ください。
全国の1日貸し駐車場を2週間先まで予約できます(エリア拡大中)。