月額
3,729円
(税込/管理料含む)





下記の一覧からご希望の区画を選択し、空き状況の確認(または空き待ち予約)にお進みください。
空き待ち可
種別
平置き
屋根
なし
舗装
不明
24時間
利用可能
貸与物
なし
3,729
円
(税込)
管理費用等含む
6,600
円
(税込)
管理費用等含む
軽自動車
長さ 3.4m以下、車幅 1.48m以下
アルト、N-BOX、タント、ワゴンR、ムーヴ、ハスラー、ウェイク、デイズ、ライフなど
高さ
不明
長さ
不明
車幅
不明
車下
不明
タイヤ幅
不明
重さ
不明
保管場所使用承諾証明書発行手数料
※1
5,500円(税込)
更新費用
※2
3,564円(税込)
※1 証明書発行をご希望の方のみ必要な費用となります。
※2 契約更新時に都度発生します。
契約期間
2年更新
インボイス制度への対応
賃貸人が適格請求書発行事業者登録済みの駐車場
無し
空き待ち可
種別
平置き
屋根
なし
舗装
不明
24時間
利用可能
貸与物
なし
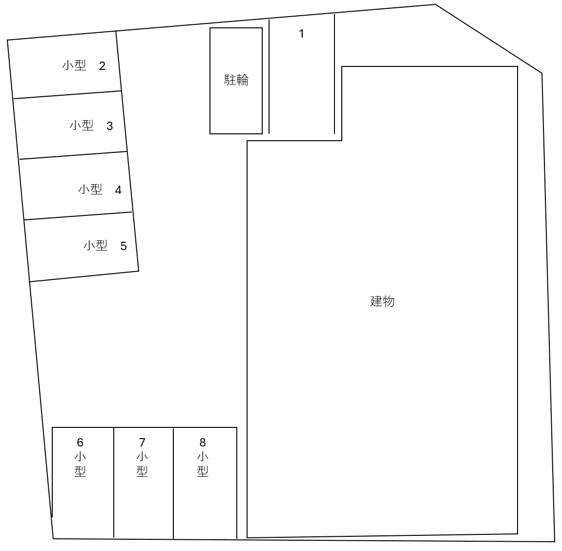
エターナル大津(入居者専用)(Park Direct管理コード:PK000073245)は島根県出雲市大津町1105-4にある平置きの月極駐車場です。 屋根なしで駐車スペースを提供しており、料金は3,729円です。 この駐車スペースは24時間利用可能で、対応車両例として軽自動車サイズまで対応しています。 この駐車場をご利用いただく際は貸与物等もありませんので、契約後すぐにご利用いただけます。


あ行・か行
さ行・た行
な行・は行
ま行・や行・ら行・わ行・英数字
JR山陰本線
北松江線
ビジネスやレジャーなど、お出かけ先での駐車場にお困りではありませんか?
1日〜数日の短期間利用できる駐車場をお探しなら、Park Directの関連サービス「ワンデイパーク」をご利用ください。
全国の1日貸し駐車場を2週間先まで予約できます(エリア拡大中)。