月額
28,512円
(税込/管理料含む)









下記の一覧からご希望の区画を選択し、空き状況の確認(または空き待ち予約)にお進みください。
空き待ち可
種別
機械式
屋根
あり
舗装
あり
24時間
利用可能
貸与物
あり
28,512
円
(税込)
管理費用等含む
52,800
円
(税込)
管理費用等含む
高さ
1,550mm
長さ
5,050mm
車幅
1,850mm
車下
不明
タイヤ幅
不明
重さ
1,800kg
保管場所使用承諾証明書発行手数料
※1
5,500円(税込)
更新費用
※2
15,312円(税込)
※1 証明書発行をご希望の方のみ必要な費用となります。
※2 契約更新時に都度発生します。
契約期間
1年更新
インボイス制度への対応
賃貸人が適格請求書発行事業者登録済みの駐車場
空き待ち可
種別
機械式
屋根
あり
舗装
あり
24時間
利用可能
貸与物
あり
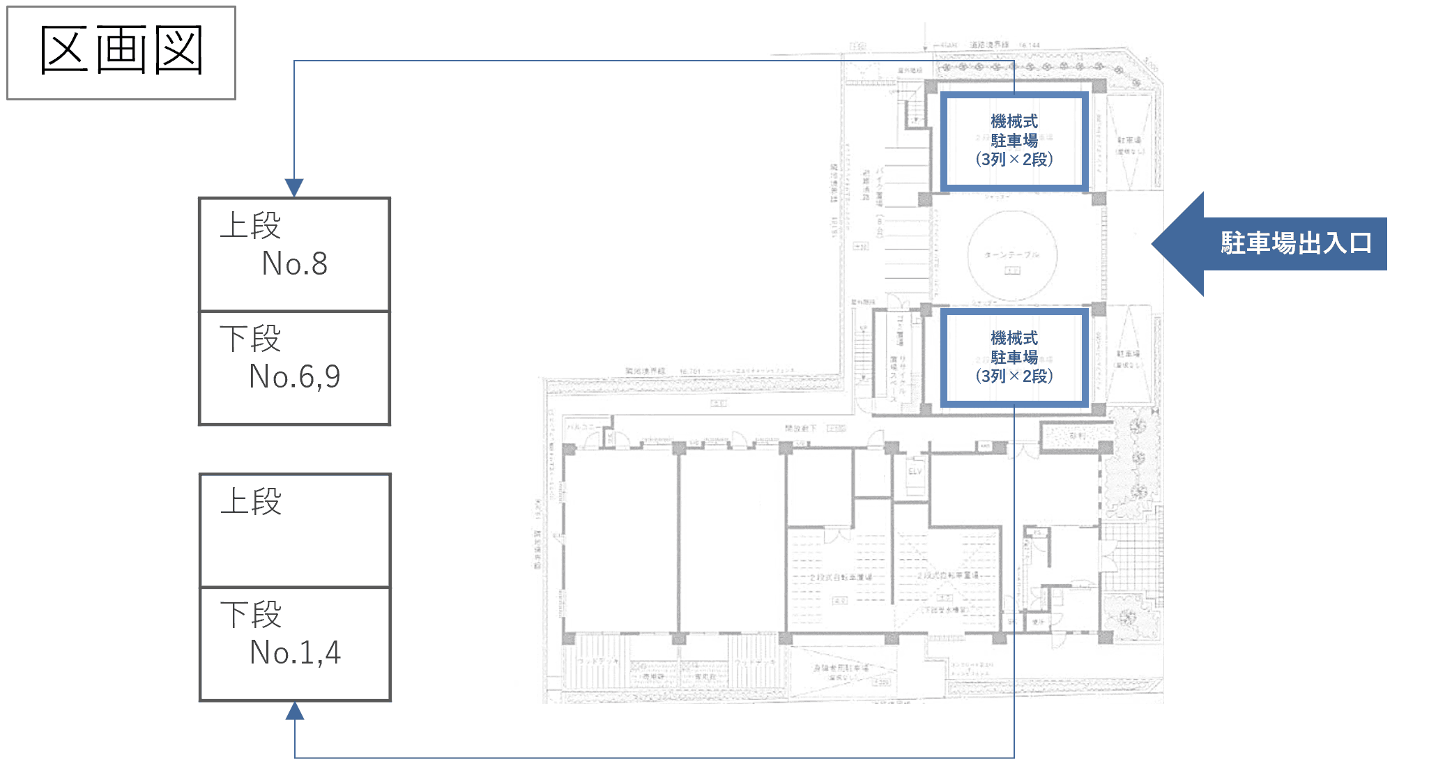
業平1丁目駐車場(Park Direct管理コード:PK000053668)は東京都墨田区業平1丁目7番17にある機械式の月極駐車場です。 屋根付きで舗装された駐車スペースを提供しており、料金は28,512円です。 この駐車スペースは24時間利用可能で、対応車両サイズは、高さ1,550mm、長さ5,050mm、車幅1,850mm、車重1,800kgに対応しています。(※詳しくはお問い合わせください) この駐車場をご利用いただく際は事前に貸与物等のお渡しが必要なためご留意ください。


あ行・か行
さ行・た行
な行・は行
ま行・や行・ら行・わ行・英数字
JR中央・総武線
JR総武本線
東京メトロ半蔵門線
東京メトロ銀座線
つくばエクスプレス
京成押上線
東武亀戸線
東武伊勢崎線
都営大江戸線
都営新宿線
都営浅草線
ビジネスやレジャーなど、お出かけ先での駐車場にお困りではありませんか?
1日〜数日の短期間利用できる駐車場をお探しなら、Park Directの関連サービス「ワンデイパーク」をご利用ください。
全国の1日貸し駐車場を2週間先まで予約できます(エリア拡大中)。