月額
32,399円
(税込/管理料含む)


下記の一覧からご希望の区画を選択し、空き状況の確認(または空き待ち予約)にお進みください。
契約可
種別
平置き
屋根
不明
舗装
不明
24時間
利用可能
貸与物
あり
32,399
円
(税込)
管理費用等含む
123,300
円
(税込)
管理費用等含む
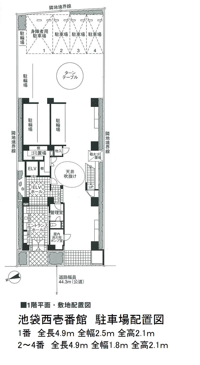
ワンボックス
長さ 4.8m未満、車幅 1.8m未満
ヴォクシー、セレナ、エスクァイア、ノア、ステップワゴン、ラフェスタ、ウィッシュ、プレマシーなど
高さ
2,100mm
長さ
4,900mm
車幅
1,800mm
車下
不明
タイヤ幅
不明
重さ
不明
保管場所使用承諾証明書発行手数料
※1
3,300円(税込)
更新費用
※2
32,399円(税込)
※1 証明書発行をご希望の方のみ必要な費用となります。
※2 契約更新時に都度発生します。
契約期間
1年更新
インボイス制度への対応
賃貸人が適格請求書発行事業者未登録の駐車場
契約可
種別
平置き
屋根
不明
舗装
不明
24時間
利用可能
貸与物
あり
スカイコート池袋西壱番館(Park Direct管理コード:PK000115299)は東京都豊島区西池袋五丁目26番10号にある平置きの月極駐車場です。 料金は32,399円です。 この駐車スペースは24時間利用可能で、対応車両例としてワンボックスサイズまで対応しています。 この駐車場をご利用いただく際は事前に貸与物等のお渡しが必要なためご留意ください。

